Pembangunan Masjid
PEMBANGUNAN MASJID LEMBAH SUBANG 2
Masjid ini dibina di atas tanah wakaf seluas kira-kira 2.69 ekar dan direka untuk menampung sehingga 3,000 orang jemaah dalam satu masa. Projek pembinaan masjid ini dianggarkan menelan kos keseluruhan sekitar RM15 juta, melibatkan pembinaan bangunan utama masjid serta kemudahan tambahan seperti infrastruktur dan kemudahan sokongan bagi kegunaan komuniti.
Usaha membangunkan Masjid Lembah Subang 2 turut mendapat sokongan pelbagai pihak termasuk masyarakat umum, badan korporat serta institusi wakaf. Antara sumbangan yang diterima termasuk sumbangan wakaf tunai melalui Perbadanan Wakaf Selangor (PWS) bagi membantu menampung kos pembinaan masjid ini.
Masjid ini dibina bagi memenuhi keperluan lebih daripada 5,000 penduduk Islam di kawasan Lembah Subang dan sekitarnya, termasuk kawasan perumahan seperti PPR Lembah Subang dan kawasan berhampiran Ara Damansara. Dengan pertambahan penduduk yang pesat di kawasan ini, pembinaan masjid baharu menjadi satu keperluan penting bagi memastikan kemudahan ibadah dapat diakses dengan lebih mudah oleh masyarakat setempat.
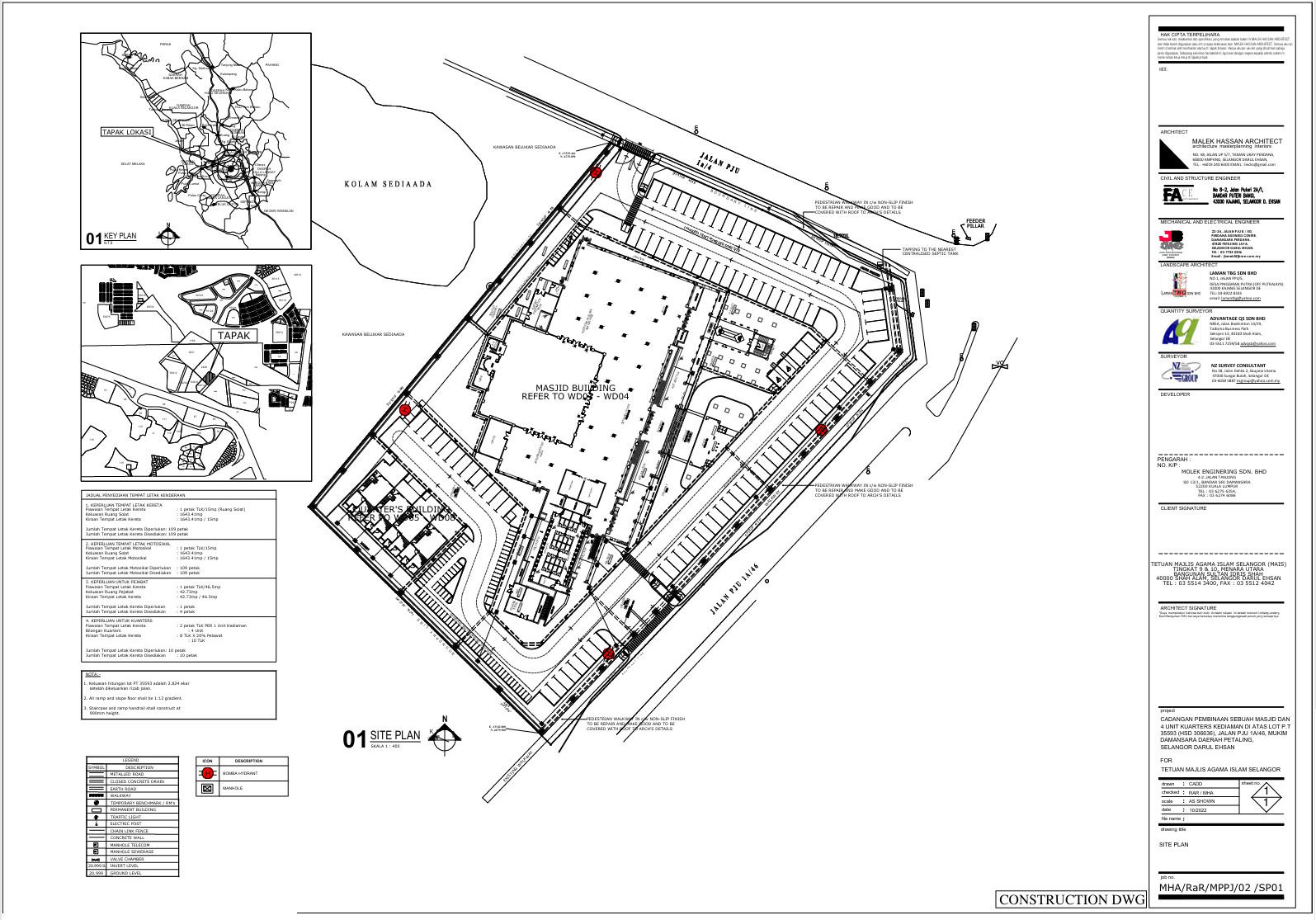
PELAN TAPAK
PELAN TAPAK
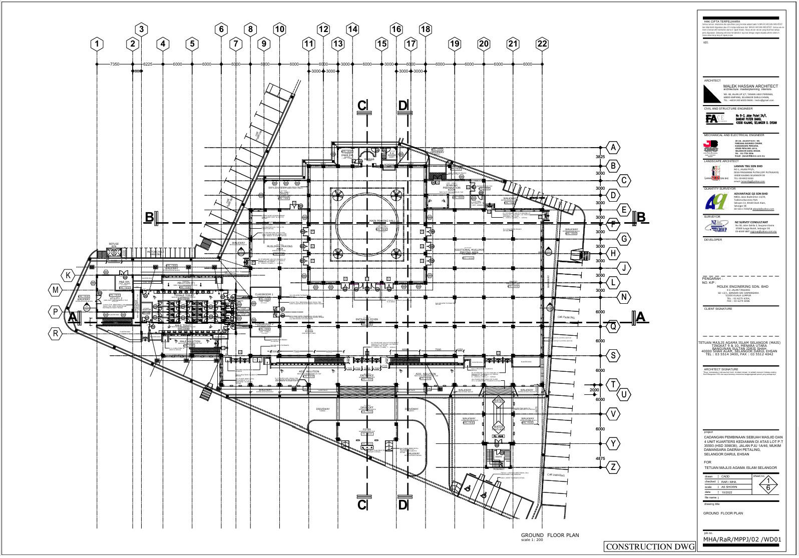
PELAN GROUND FLOOR

PELAN PANDANGAN HADAPAN & BELAKANG

PELAN PANDANGAN KIRI & KANAN

HUBUNGI KAMI
